$695,000
39536 Musick Falls RD Lot 8
Shaver Lake, CA, 93664
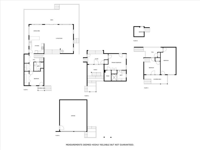
Escape to the Mountains! This spacious 4-bedroom, 2-bath multi-level cabin in beautiful Shaver Lake sleeps 13+ and is the perfect retreat for families and groups. The stunning great room features a soaring vaulted ceiling and expansive windows that flood the space with natural light and bring the beauty of the outdoors in. Each of the four bedrooms offers direct access to a private deck—ideal for your morning coffee, a good book, or simply soaking in the mountain air. In the winter, a beautiful granite rock behind the property becomes a natural sledding hill, and the adjacent lot—purchased by a neighbor with plans to preserve its open space—offers even more room for snow play and adventure. Recent upgrades include fresh interior and exterior paint, a brand-new metal roof (2024), and stylish luxury vinyl plank flooring in the main living area. A 2-car attached garage ensures convenience and comfort when arriving in any season. Whether you’re looking for a cozy getaway or an adventurous basecamp, this cabin delivers comfort, space, and the true mountain experience. Bedroom count and square footage differs from tax records; buyer to verify if important.
Property Details
Price:
$695,000
MLS #:
MD25195070
Status:
Active
Beds:
4
Baths:
2
Type:
Single Family
Subtype:
Cabin
Listed Date:
Aug 29, 2025
Finished Sq Ft:
2,220
Lot Size:
9,600 sqft / 0.22 acres (approx)
Year Built:
1992
Schools
School District:
Sierra Unified
Interior
Bathrooms
1 Full Bathroom, 1 Three Quarter Bathroom
Cooling
NO
Heating
CF
Laundry Features
IN
Exterior
Community Features
MTN, LAKE, FISH, WATE, HIKI, BIKI
Parking Spots
2
Financial
Mortgage Calculator
Map
Current real estate data for Single Family in Shaver Lake as of Nov 28, 2025
1
Single Family Listed
90
Avg DOM
313
Avg $ / SqFt
$695,000
Avg List Price
Community
- Address39536 Musick Falls RD Lot 8 Shaver Lake CA
- CityShaver Lake
- CountyFresno
- Zip Code93664
Similar Listings Nearby
Property Summary
- 39536 Musick Falls RD Lot 8 Shaver Lake CA is a Single Family for sale in Shaver Lake, CA, 93664. It is listed for $695,000 and features 4 beds, 2 baths, and has approximately 2,220 square feet of living space, and was originally constructed in 1992. The current price per square foot is $313. The average price per square foot for Single Family listings in Shaver Lake is $313. The average listing price for Single Family in Shaver Lake is $695,000. To schedule a showing of MLS#md25195070 at 39536 Musick Falls RD Lot 8 in Shaver Lake, CA, contact your Valley Harvest Properties agent at 5597797132.
Courtesy of London Properties/Clovis. Disclaimer: All data relating to real estate for sale on this page comes from the Broker Reciprocity (BR) of the California Regional Multiple Listing Service. Detailed information about real estate listings held by brokerage firms other than Valley Harvest Properties include the name of the listing broker. Neither the listing company nor Valley Harvest Properties shall be responsible for any typographical errors, misinformation, misprints and shall be held totally harmless. The Broker providing this data believes it to be correct, but advises interested parties to confirm any item before relying on it in a purchase decision. Copyright 2025. California Regional Multiple Listing Service. All rights reserved. 39536 Musick Falls RD Lot 8
Shaver Lake, CA






























































