$406,900
13472 Fourth #Lot14
Parlier, CA, 93648
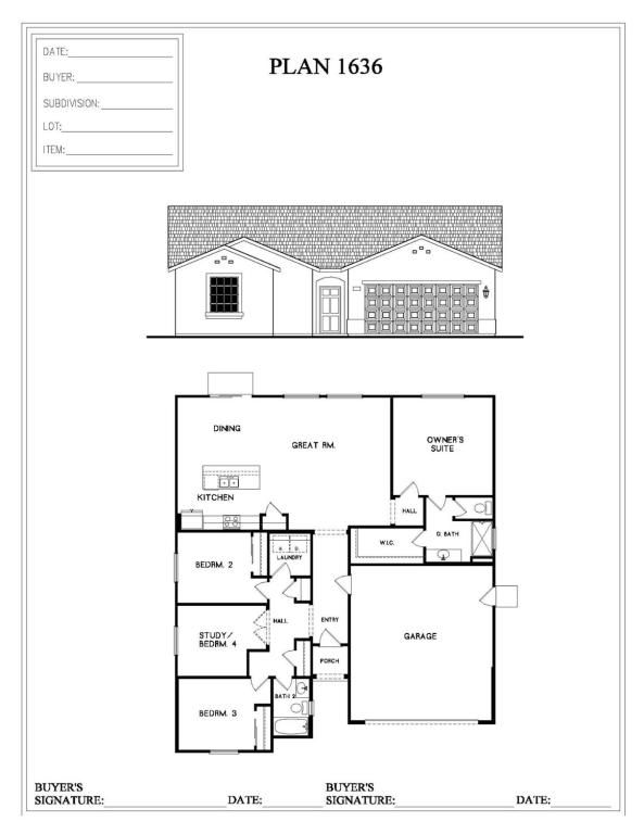
Introducing our beauitful 4 bedrrom,2 bath floor plan that we believe you will love. This open floor plan is designed for entertaining guests, featuring a spacious kitchen equipped with an island and elegant granite countertops. The kitchen offers ample room for cooking and comes with plenty of cabinets for storage, making it both functional and stylish. Additionally, the master suite is designed to be roomy and inviting, providing a perfect retreat at the end of the day. We invite you to explore this new floor plan and look forward to your feedback.
Property Details
Price:
$406,900
MLS #:
614084
Status:
Pending
Beds:
4
Baths:
2
Type:
Single Family
Subtype:
Single Family Residence
Neighborhood:
648
Listed Date:
Jun 17, 2024
Finished Sq Ft:
1,636
Lot Size:
6,598 sqft / 0.15 acres (approx)
Schools
School District:
Parlier
Interior
Exterior
Financial
With over 25 years of experience as a successful attorney in California and a proven track record as a real estate broker since 2015, I bring a unique combination of legal expertise and market insight to every transaction. My career is built on a foundation of dedication, integrity, and a deep understanding of both the legal and real estate landscapes. As an attorney, I’ve honed my negotiation and advocacy skills, ensuring the best outcomes for my clients. As a real estate broker, I’ve seaml…
More About MelissaMortgage Calculator
Map
Current real estate data for Single Family in Parlier as of Nov 25, 2025
14
Single Family Listed
148
Avg DOM
235
Avg $ / SqFt
$380,357
Avg List Price
Community
- Address13472 Fourth #Lot14 Parlier CA
- CityParlier
- CountyFresno
- Zip Code93648
Similar Listings Nearby
Property Summary
- 13472 Fourth #Lot14 Parlier CA is a Single Family for sale in Parlier, CA, 93648. It is listed for $406,900 and features 4 beds, 2 baths, and has approximately 1,636 square feet of living space.The current price per square foot is $249. The average price per square foot for Single Family listings in Parlier is $235. The average listing price for Single Family in Parlier is $380,357. To schedule a showing of MLS#614084 at 13472 Fourth #Lot14 in Parlier, CA, contact your Valley Harvest Properties agent at 5597797132.

13472 Fourth #Lot14
Parlier, CA



