$89,000
11111 Peterson Road
Auberry, CA, 93602
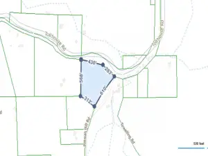
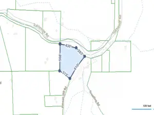
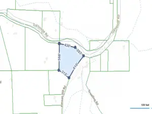
5.26 Acres of private property near Shaver Lake. Enjoy this private location at the gateway to the Sierra Nevada Mountains! Build your dream home or bring up your RV for weekends and take advantage of all that the mountains have to offer. This parcel has rough-in driveways and a nice building area where the ridge plateaus. Take advantage of the beautiful views of Blue Canyon and enjoy hiking or quadding on your own piece of the forest. Located approximately 4 miles in on Peterson Road, which continues past the property to some of the most beautiful areas and numerous places to explore.The property is across the street from 37749 Peterson Road, which you can use with your GPS.
Property Details
Price:
$89,000
MLS #:
635482
Status:
Active
Baths:
0
Type:
Land
Subtype:
Single Family Residence
Neighborhood:
602
Listed Date:
Aug 15, 2025
Lot Size:
229,126 sqft / 5.26 acres (approx)
Schools
School District:
Sierra Unified
Interior
Exterior
Financial
With over 25 years of experience as a successful attorney in California and a proven track record as a real estate broker since 2015, I bring a unique combination of legal expertise and market insight to every transaction. My career is built on a foundation of dedication, integrity, and a deep understanding of both the legal and real estate landscapes. As an attorney, I’ve honed my negotiation and advocacy skills, ensuring the best outcomes for my clients. As a real estate broker, I’ve seaml…
More About MelissaMortgage Calculator
Map
Community
- Address11111 Peterson Road Auberry CA
- CityAuberry
- CountyFresno
- Zip Code93602
Similar Listings Nearby
Property Summary
- 11111 Peterson Road Auberry CA is a Land for sale in Auberry, CA, 93602. It is listed for $89,000 and features 5 acres. To schedule a showing of MLS#635482 at 11111 Peterson Road in Auberry, CA, contact your Valley Harvest Properties agent at 5597797132.

11111 Peterson Road
Auberry, CA


